- Ruční nářadí
- Pájecí technika
- Optická zařízení
Novinky
Zobrazit všechny novinky- Úvod
- ESD nábytek a vozíky
- Antistatický nábytek Light - E
- ESD panelové stěny
- ESD Panelová stěna
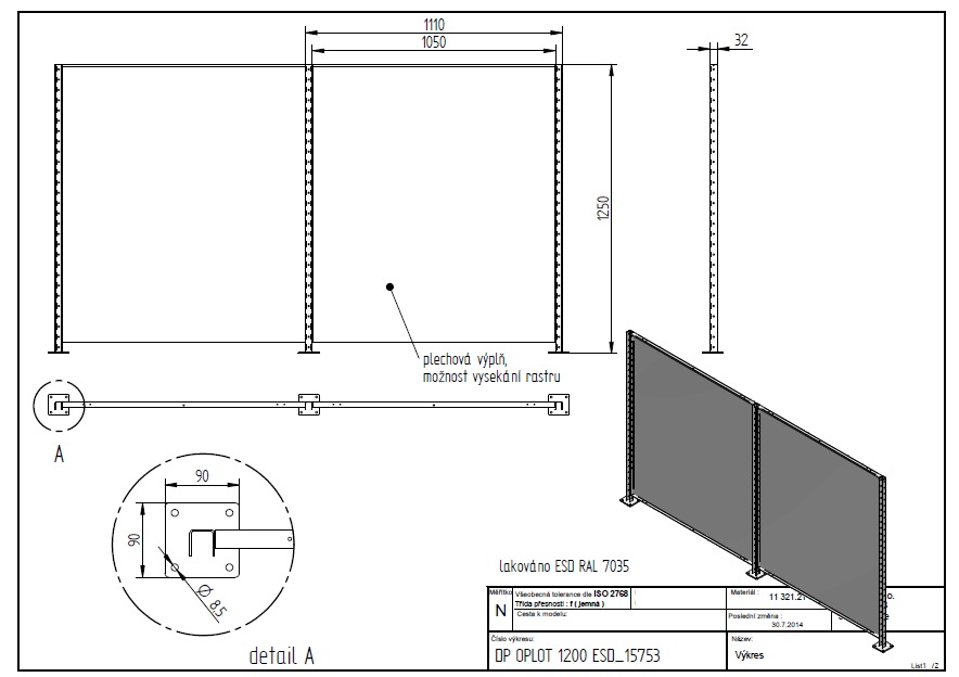
ESD Panelová stěna
- Kompletní specifikace
- Komentáře 0
ESD Panelová stěna9 201 Kč/ bežný metr7 604 Kč bez DPH
Kompletní specifikace
Antistatická panelová stěna
Plechové výplně 1050 x 1250 (šiřka x výška) v barvě RAL 7035 ESD
Stojka výška 1250 v barvě RAL 7035 ESD
Zboží zařazeno v kategoriích



